+5
Bandol (83150)

Duplex 6 pièce(s) 3 chambre(s) 150 m²

Balcon
1
735 000 €
Réf 1721MG

Rare! Situé à Bandol, cet immeuble offre un potentiel énorme pour divers projets, que ce soit pour un bureau d’entreprise accueillant du public, ou tout simplement pour votre résidence personnelle, complétée par une terrasse rooftop offrant une vue imprenable sur le port et toute la rade de Bandol.

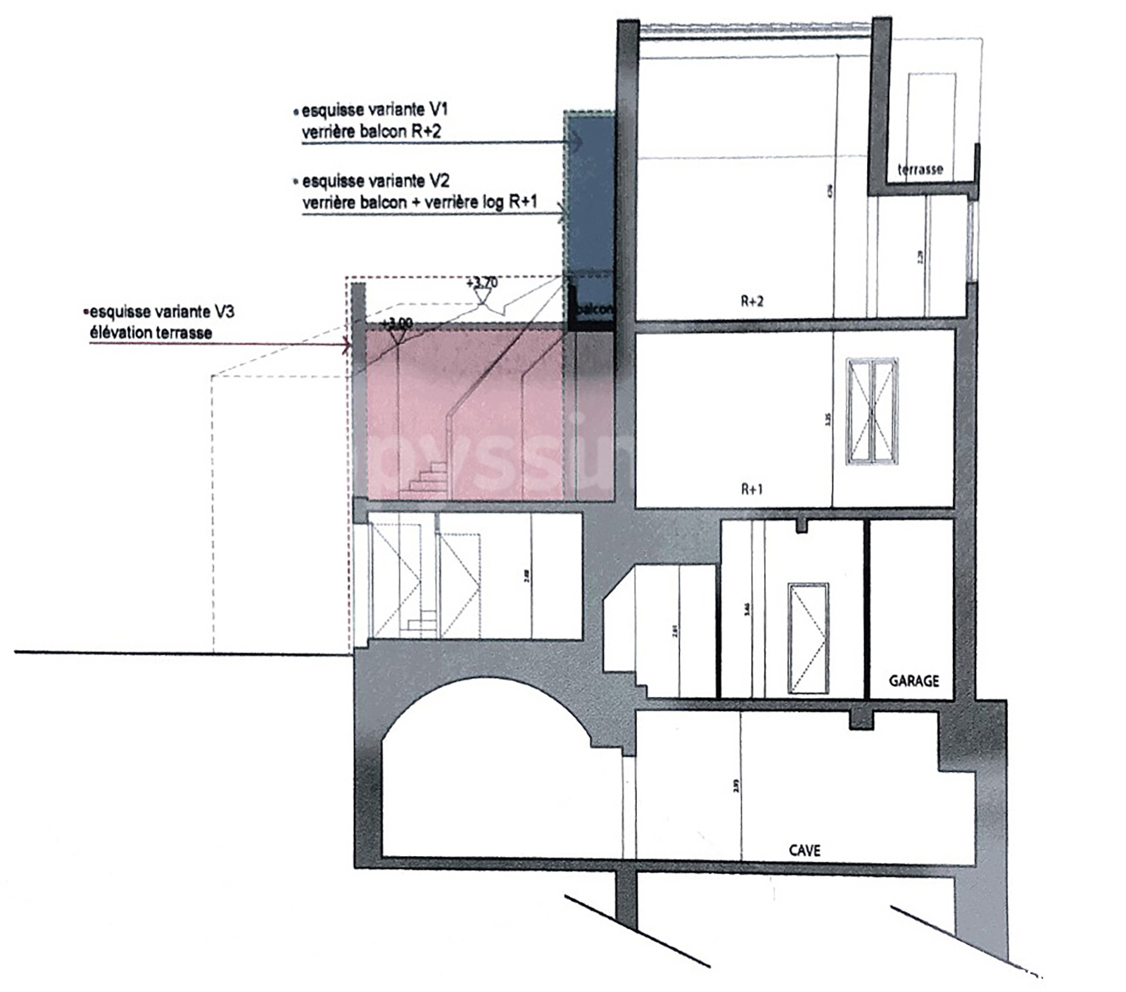
L’immeuble se compose de deux appartements , chacun d’une superficie de 50m². Le premier dispose d’une terrasse de 15m², tandis que le second offre un plateau équivalent avec une mezzanine qui donne accès à sa terrasse et à une vue à couper le souffle.

De plus, cette batisse est équipée d’un garage de 45m² pouvant servir d’accueil, d’une magnifique pièce en pierre voûtée, d’un autre local et d’une pièce de 12m².

Les appartements sont à rénover entièrement. Nous disposons de tous les devis d’architecte et d’entreprise, ainsi que du début de la trame pour votre ascenseur.

Cet immeuble, ancienne tour du Seigneur BOYER de Bandol, avec sa terrasse, sa vue panoramique sur le port, sa proximité immédiate du centre-ville sans les nuisances et ses grands volumes, sera votre futur projet commercial ou votre future habitation de standing.

Bilan énergétique

Diagnostics énergetiques
A propos de ce bien Caractéristiques de ce bien
  • Surface 150 m²
  • carrez 200 m²
  • 3 chambre(s)
  • 1 garage(s)
  • 3 niveau(x)
  • cave
  • balcon
  • terrasse

Financier

Informations financières
Prix de vente 735 000 € Les honoraires d'agence seront intégralement à la charge du vendeur

Autour du bien

Découvrez le quartier

Simulation

Calcul des mensualités
* Champs obligatoires
Maxime GARGANI Négociateur