+6
Hyères (83400)

Appartement 4 pièce(s) 3 chambre(s) 83 m²

1
349 000 €
Réf 2051.1JLP1

Dans un quartier résidentiel et très calme du port de Hyères, à seulement 5 minutes de la plage de l’Almanarre, découvrez ce T4 traversant offrant un véritable potentiel, situé au premier étage d’une petite copropriété de 4 lots aux faibles charges.

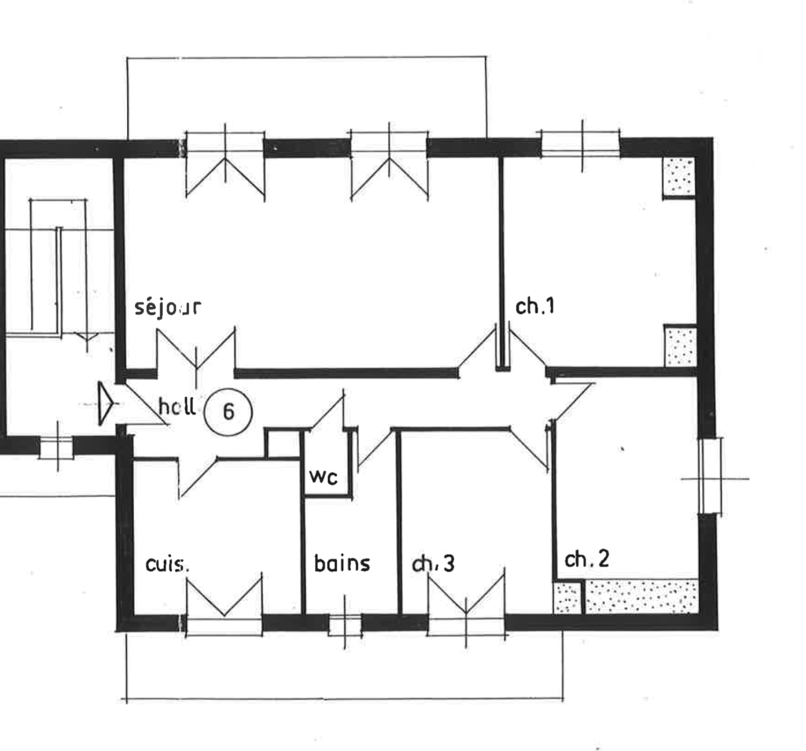
Cet appartement se compose d’une entrée, d’un séjour lumineux, d’une cuisine séparée, d’une salle de bain ainsi que de trois chambres. Une climatisation réversible assure votre confort en toute saison. Quelques travaux de rafraîchissement permettront de le mettre pleinement à votre goût.

Vous apprécierez particulièrement ses deux balcons, l’un exposé est, l’autre ouest, offrant une belle luminosité tout au long de la journée.

Une place de parking privative en jouissance exclusive vient compléter ce bien.

Un emplacement privilégié, une belle luminosité, un fort potentiel :
une opportunité à saisir au Port de Hyères !

Contactez Happyssimmo pour plus d’informations ou organiser une visite.

Bilan énergétique

Diagnostics énergetiques
A propos de ce bien Caractéristiques de ce bien
  • Surface 83 m²
  • carrez 82,58 m²
  • 3 chambre(s)
  • 1 salle(s) de bain
  • construit en 1955
  • cuisine séparée
  • Chauffage individuel : air pulsé (electrique)
  • exposition Sud-Ouest
  • 1er étage
  • 1 étage(s)

Financier

Informations financières
Prix de vente 349 000 € Les honoraires d'agence seront intégralement à la charge du vendeur

Autour du bien

Découvrez le quartier

Simulation

Calcul des mensualités
* Champs obligatoires